For more information regarding the value of a property, please contact us for a free consultation.
9293 SE Saturn St Hobe Sound, FL 33455
Want to know what your home might be worth? Contact us for a FREE valuation!

Our team is ready to help you sell your home for the highest possible price ASAP
Key Details
Sold Price $633,750
Property Type Single Family Home
Sub Type Single Family Residence
Listing Status Sold
Purchase Type For Sale
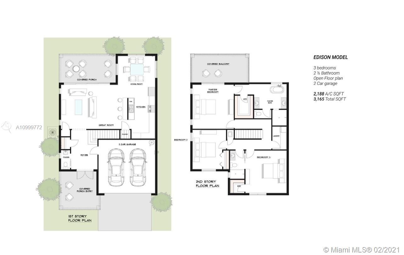
Square Footage 2,188 sqft
Price per Sqft $289
Subdivision Olympia Plat No 1
MLS Listing ID A10999772
Sold Date 09/10/21
Style Two Story
Bedrooms 3
Full Baths 2
Half Baths 1
HOA Y/N No
Year Built 2021
Annual Tax Amount $1,745
Tax Year 2019
Contingent 3rd Party Approval
Lot Size 6,098 Sqft
Property Sub-Type Single Family Residence
Property Description
New construction to be completed by June 2021 in the desirable neighborhood of Zeus Park,which is close to local shops,restaurants,beaches,etc & no HOA.This beautiful 2 story home with 3 bedrooms,2 1/2 baths and a 2 car garage has an open floor plan with impressive 10 foot ceilings that provide a grand ambiance.This home has lots of natural lighting and an oversized kitchen.Great outdoor space with 2 covered porches, and a covered balcony.This home is built with high quality standards and products,including impact glass windows and doors, stainless steel appliances, epoxy garage flooring and a smart home package.At this time,buyer has option to choose finishes or upgrades from builders catalog.Please contact agent for catalog.See supplemental remarks and attachments for required waivers
Location
State FL
County Martin County
Community Olympia Plat No 1
Area 5020
Interior
Interior Features First Floor Entry, Pantry, Upper Level Master, Attic
Heating Central
Cooling Central Air
Flooring Other
Window Features Impact Glass
Appliance Dishwasher, Electric Water Heater, Microwave, Other, Refrigerator
Laundry Washer Hookup, Dryer Hookup
Exterior
Exterior Feature Balcony, Porch, Room For Pool
Parking Features Attached
Garage Spaces 2.0
Pool None
View Y/N No
View None
Roof Type Metal
Porch Balcony, Open, Porch
Garage Yes
Private Pool No
Building
Lot Description < 1/4 Acre
Faces South
Story 2
Sewer Septic Tank
Water Public
Architectural Style Two Story
Level or Stories Two
Structure Type Block
New Construction true
Others
Senior Community No
Tax ID 343842029003004000
Security Features Smoke Detector(s)
Acceptable Financing Cash, Conventional, FHA, VA Loan
Listing Terms Cash, Conventional, FHA, VA Loan
Financing Conventional
Read Less

Bought with MAR NON MLS MEMBER
GET MORE INFORMATION


